 
        
        
      
    
    The History Workshop:
Wits University, Johannesburg
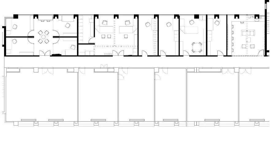
In this small interior refurbishment subtraction rather than addition allows the generous proportions of the 1960s building frame and its previously hidden structural rhythms to modulate a new set of academic spaces.
The History Workshop, an NRF-funded research unit, is accommodated in a series of teaching and admin spaces inserted into an existing building on the Wits University campus. Suspended ceilings, security gates, cabling, and conducting accrued over time are stripped away to form calm spaces for study and work. Transparent and translucent partitions afford a sense of space and transmit natural light. In the common room, the built-in furniture made of white Melamine and ducted MDF together with the black and white photographs of Sally Gaule further underline simplicity and calmness.
Project team: Thorsten Deckler, Anne Graupner, Stephen Reid, Philippa Frowein
Photographed by Conrad Judson
 
                         
               
               
               
              